玄関から直接行き来できる便利なガレージをプラス。セキュリティはもちろん、クルマも雨ざらしになることもありません。屋上をバルコニーとしても無駄無く活用。「クルマは、もうひとりの家族」。そんな想いをカタチにできます。
屋上へ続く階段を昇ると、そこにはワンフロア分の広々バルコニー。周囲の視線が気にならない開放感あふれるプライベートゾーンになり、空を感じながら、ガーデニングスペースとしても楽しめ、その魅力は無限大。
屋上のバルコニーにつながるPENTHOUSEを。心地よい風を感じながら読書をしたり、お昼寝スペースとしてなど、毎日の暮らしにゆとりをあたえる贅沢なスペースです。自分だけの特別な空間をプラスしましょう。
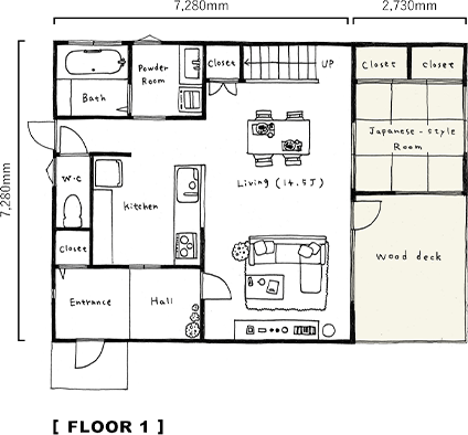
客間として、子供のふれあいスペースとしても活用できる和室スペースを実現。リビングからつながるウッドデッキスペースでは、家族でバーベキューを楽しめます。家族構成やライフスタイルに合わせてBOXをプラス。
キューブ型のスタンダード住宅、ZERO-CUBE。
洗練されたシンプルな家をベースに
オプションで家族のコダワリや
新しい発想の家づくり。
部屋を一つ追加してアトリエにしたり、
組み合わせはあなた次第。
あなただけのプラスの
基本性能のクオリティーを大切にしながら、
徹底的にムダを削ぎ落としたからこそ生まれた四角い家。シンプルで美しいデザイン。
建物の凹凸をなくすことで、広々とした室内空間を創出しました。
延床面積 / 98.53㎡(29.80坪)
床面積 / 1F:52.99㎡(16.03坪) 2F:45.54㎡(13.77坪)
外観カラーは8種類からお選びいただけます。
-
ホワイト
-
シルバー
-
シルバーブラウン
-
ブラック
-
ブラウン
-
ブルー
-
モスグリーン
-
レッド
-
+BOX
1階に1部屋プラス
-
+BOX²
2部屋プラス
-
+SKY BALCONY
屋上バルコニーをプラス
-
+BOX SKYBALCONY
屋上バルコニーと1部屋プラス
-
+BOX²SKYBALCONY
屋上+2部屋の贅沢プラン
-
+PENTHOUSE
屋上を眺めるペントハウス
-
+GARAGE
ガレージスペースがほしい
-
+INNER GARAGE
ビルトインガレージ、3階建て
+BOX
1階に1部屋プラス
延床面積 / 108.47m²(32.81坪)
1F : 62.93m²(19.04坪) / 2F : 45.5m²(13.77坪)
+BOX²
2部屋プラス
延床面積 / 121.72㎡²(36.82坪)
1F : 62.93㎡(19.04坪) / 2F : 58.79㎡(17.78坪)
+SKY BALCONY
屋上バルコニーをプラス
延床面積 / 105.15㎡(31.80坪)
1F : 52.99㎡(16.03坪) / 2F : 48.02㎡(14.52坪) / バルコニー46.37㎡(14.01坪)
+BOX SKYBALCONY
屋上バルコニーと1部屋プラス
延床面積 / 115.09㎡(34.81坪)
1F : 62.93㎡(19.04坪) / 2F : 48.02㎡(14.52坪)
SKY BALCONY / 建物内4.14㎡(1.25坪) / バルコニー46.37㎡(14.01坪)
+BOX²SKYBALCONY
屋上+2部屋の贅沢プラン
延床面積 / 128.34㎡(38.82坪)
1F : 62.93㎡(19.04坪) / 2F : 61.27㎡(18.53坪)
SKY BALCONY / 建物内4.14㎡(1.25坪) / バルコニー56.31㎡(17.03坪)
+PENTHOUSE
屋上を眺めるペントハウス
延床面積 / 118.40㎡(35.81坪)
1F : 52.99㎡(16.03坪) / 2F : 48.02㎡(14.52坪)
SKY BALCONY / 建物内17.39㎡(5.26坪) / バルコニー33.12㎡(10.01坪)
+GARAGE
ガレージスペースがほしい
延床面積 / 121.72㎡(36.82坪)
1F : 76.18㎡(23.04坪) / 2F : 45.54㎡(13.78坪)
+INNER GARAGE
ビルトインガレージ、3階建て
延床面積 / 151.52㎡(45.81坪)
1F : 52.99㎡(16.02坪) / 2F : 52.99㎡(16.02坪) / 3F : 45.5㎡(13.77坪)
いつでも自分の“好き”を試せる、
LIFE LABELの家づくりアプリ。
暮らしの楽しみ方を知りたい、欲しい家を探したい、
家を建てるのに費用感を知りたいなど、家づくりには知りたいことばかり。
そんな家づくりの“知りたい”をアプリが応えます。
家づくりをサポートする機能と共にあなたの家づくりを始めましょう。





